Mitten im gewachsenen Ortskern von Kareth, erstmals 1228 urkundlich erwähnt, entsteht ein Bauprojekt mit besonderem Anspruch. Direkt gegenüber der Dorfkirche verbindet es Geschichte, Identität und zeitgemäßes Wohnen auf einzigartige Weise. Das Ensemble umfasst zwei Bestandsgebäude, von denen eines Historischen Ursprungs ist. Mit großer Sorgfalt und Respekt vor der bestehenden Bausubstanz wird der Charakter des Ortes bewahrt und behutsam weiterentwickelt. traditionelle Elemente treffen auf Moderen Architektur - ein spannender Dialog zwischen Vergangenheit und Zukunft.
Verfügbare Einheiten
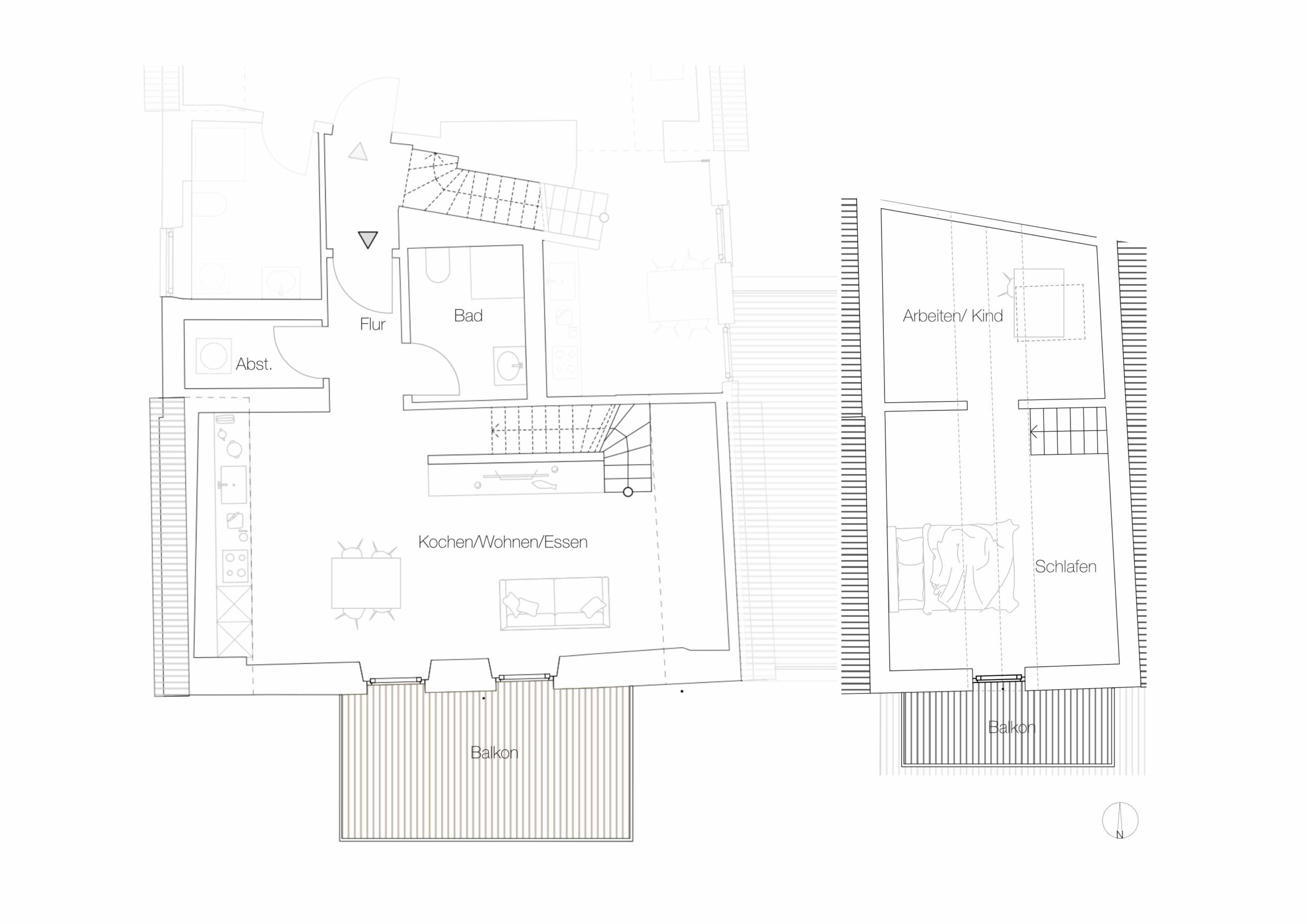
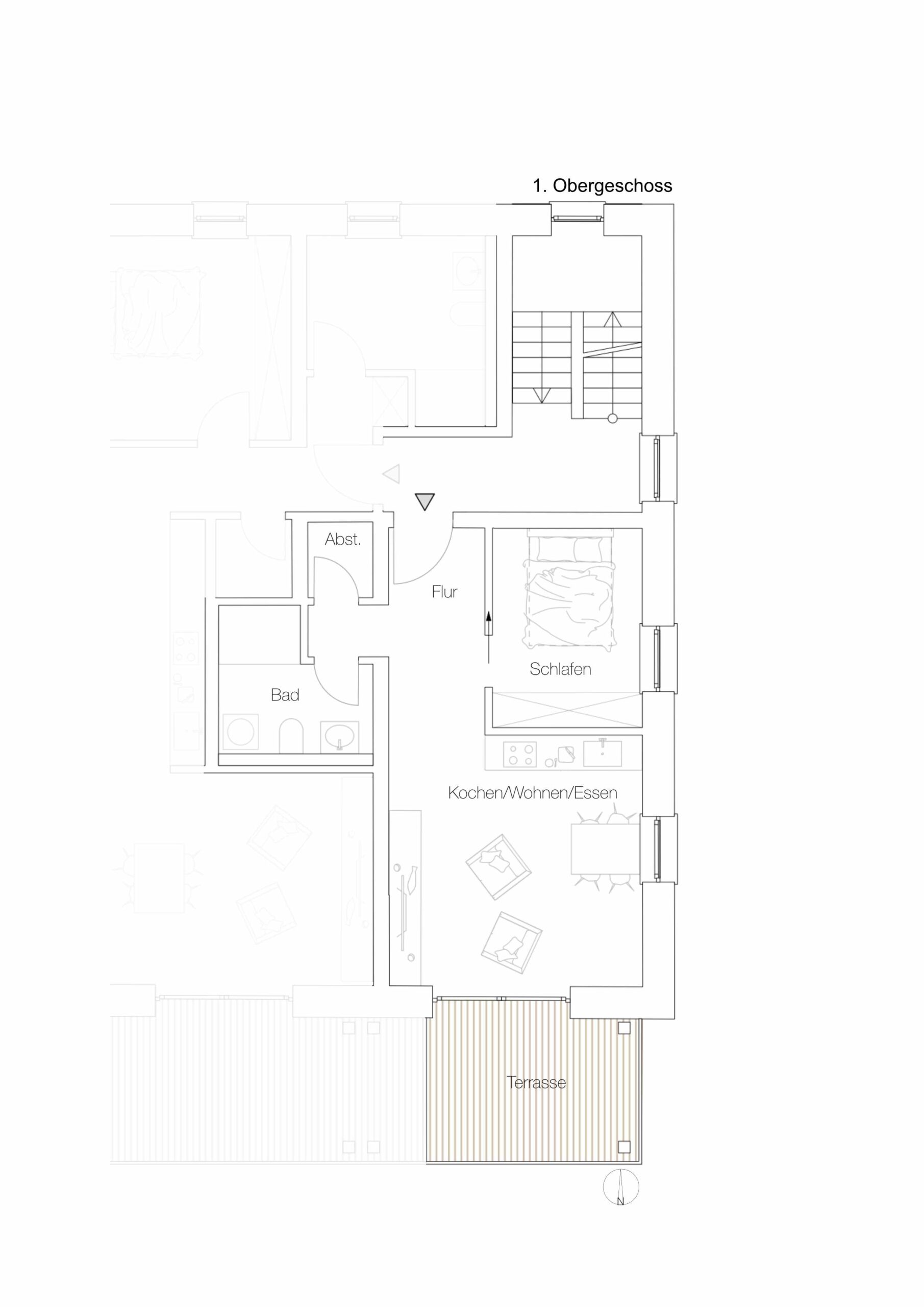
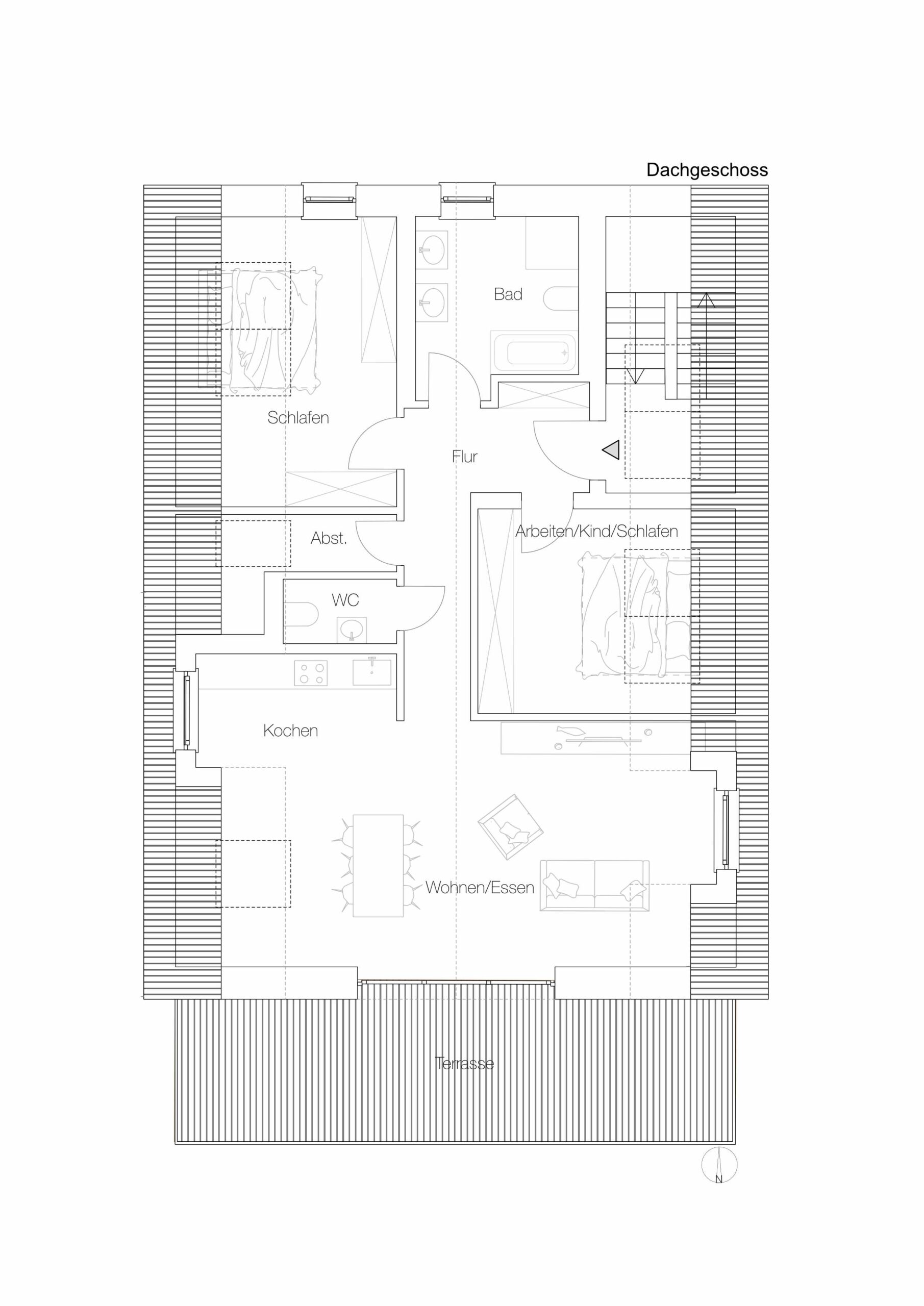
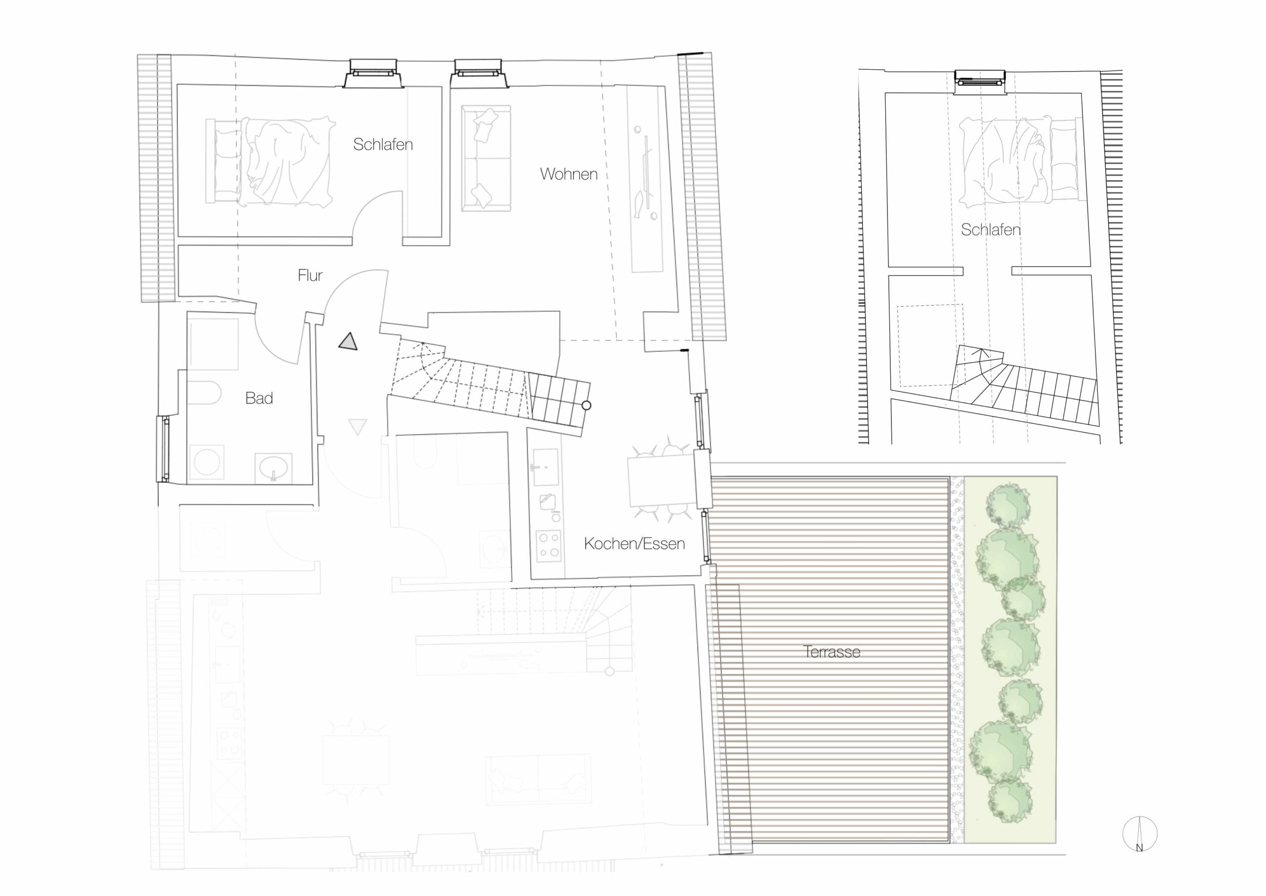
Bis zu 100qm Wohnfläche
9 Einheiten
1 Zuhause
Alltag und doch ein Stück darüber.
Direkt an der Stadt und doch ganz Dorf – Kareth vereint das Beste aus zwei Welten. Mit Kirche, traditionellem Gasthaus, Kindergarten, Schulen und ganz viel Grün ringsum hat sich dieser charmante historische Ortsteil vor Regensburg seinen ursprünglichen Charakter bewahrt. Eingebettet zwischen Wiesen und Feldern strahlt Kareth eine Ruhe und Bodenständigkeit aus, die man im urbanen Umfeld selten findet.
Während die Regensburger Innenstadt zunehmend verdichtet wird, bietet Kareth ein entschleunigtes Wohnumfeld mit immens hoher Lebensqualität. Bewohner profitieren von der hervorragenden Verkehrsanbindung, die schnelle Wege in die Innenstadt sowie zu den umliegenden Stadtteilen ermöglicht – ob mit dem Auto, dem Fahrrad oder dem Stadtbus.
Besonders attraktiv ist die Lage auch durch die Nähe zu namhaften Arbeitgebern der Region, wie Infineon, Maschinenfabrik Reinhausen, zahlreichen Schulen, die Innenstadt und dem Gewerbepark. Alle Einrichtungen des täglichen Bedarfs – Einkaufsmöglichkeiten, Schulen, Ärzte und Freizeitangebote – sind direkt vor der Haustür. So wird Kareth zu einem idealen Wohnstandort für Familien, Berufstätige und Kapitalanleger gleichermaßen.
Wenn es diesen Platz für ein Haus nicht geben würde, müsste man ihn erfinden. Lebensqualität entsteht in den kleinen Dingen und Annehmlichkeiten unseres Alltags. Dabei ist es egal, ob man mit Kindern lebt, oder einfach Platz für die eigene Entfaltung braucht. Eine ruhige Nachbarschaft und der größte Spielplatz der Welt – die Natur vor der Tür – bilden auch für die Großen einen guten Lebensmittelpunkt. Ruhig ausgerichtet, offen ins Grüne. In der Hauptstraße Nr ̊ 89 & 91 von Kareth realisieren wir ein kleines Wohnensemble in der Ortsmitte. Dafür konnten wir Sascha Schöberl von AMY Architekten, ebenso wie eine regionale traditionsreiche Baufirma mit lokalen Handwerkern für das Projekt gewinnen. Diese Kombination zahlt sich mit stilvoller Gestaltung und durchdachten Grundrissen aus. Alles mit dem Ziel, dass unser Konzept vom Haus im Grünen zum persönlichen Traumhaus wird. Unter einem Dach — kein anonymes Wohnsilo — sondern eine gebaute Nachbarschaft. Bei insgesamt nur neun Einheiten, und einer guten Mischung der neuen Bewohner kennt man sich schnell und kommt leicht ins Gespräch. Vielleicht ergibt sich auch ein gemeinsames Grillen oder ein Glas Wein auf einem der individuellen Balkone oder dem gemeinschaftlichen Garten.
Highlights
Flächenheizung im gesamten Wohn-/Arbeitsbereich
Holzfenster mit 3-fach Wärmeschutzverglasung
Nachhaltige ökologisch hochwertige Bauweise
Reduzierung von Kunststoffe und Verpackungen
Ökologische emissionsarme Farben und Lacke
Wärmepumpe
Balkon oder Terrasse für jede Wohnung
Gehobene Badausstattung
Zusätzliche Abstellmöglichkeiten für Fahrräder oder Kinderwägen
KfW Effizienzhaus 55
Tilgungszuschuss KfW 261 + WPB
... und vieles mehr
Ja, ich will!
... mich für das Projekt vormerken lassen.
Bitte senden Sie mir weitere Unterlagen, Prospekte und die verfügbaren Einheiten.
Dies ist ein freiwilliges unverbindliches Angebot und kann jederzeit mit einer Kurzen Nachricht an Mail@Quintagroup.de wiederrufen werden.
Rufen Sie uns an oder kommen Sie vorbei!
Quinta Immobilienentwicklung
Geschäftsführer Dipl. Ing. (FH) Raphael Sattler
St.-Georgen-Platz 6 93047 Regensburg
T +49 941 / 20 60 45 75 F +49 941 / 20 60 45 73
mail@quintagroup.de
Impressum & Datenschutzerklärung
